Cartes et plans

1 media

Déplier tous les niveaux

Cote/Cotes extrêmes

4Fi

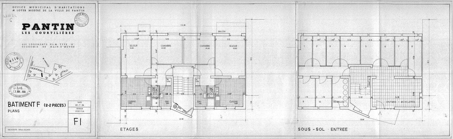
Les Courtillières. - 400 logements HLM de type B, projet de construction par l'Office municipal d'habitations à loyer modéré de la ville de Pantin : plans du sous-sol et des étages du bâtiment F (2 pièces).

Cote/Cotes extrêmes

4FI/2287/5

Autres Cotes

43W/24

Date

20 juillet 1956

Caractéristiques physiques

Échelle 1/50e

Conditions d'accès

Communicable

Mots clés personnes