Résultats de la recherche

  1. Résultat n°1
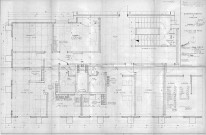
    99, rue de Paris. - Construction de 27 appartements, projet : plan des cellules 3 pièces.

    1 media

    99, rue de Paris. - Construction de 27 appartements, projet : plan des cellules 3 pièces.

    Date

    25 juin 1955

    Cote

    4FI/2893/4, 43W/108

    • Contexte : Cartes et plans
    • 99, rue de Paris. - Construction de 27 appartements,...
  2. Résultat n°2

    99 avenue Jean-Lolive et 50 rue Victor-Hugo. - Résidence Victor-Hugo, construction d'un immeuble de 255 logements : permis de construire PC 55B3954.

    Date

    1955-1961

    Cote

    43W/108/2

    • Contexte : 43W
    • 99 avenue Jean-Lolive et 50 rue Victor-Hugo. - Résidence...
  3. Résultat n°3
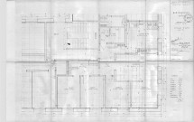
    50 bis, 50 ter, 52 et 52 bis, rue Victor-Hugo. - Construction de 255 appartements, projet : plan du rez-de-chaussée et de l'étage courant.

    1 media

    50 bis, 50 ter, 52 et 52 bis, rue Victor-Hugo. - Construction de 255 appartements, projet : plan du rez-de-chaussée et de l'étage courant.

    Date

    25 juin 1955

    Cote

    4FI/2897/3, 43W/109

    • Contexte : Cartes et plans
    • 50 bis, 50 ter, 52 et 52 bis, rue Victor-Hugo. - Construction...
  4. Résultat n°4
    54 bis, rue Victor-Hugo. - Construction de 255 appartements, projet : plan des cellules 3 et 4 pièces.

    1 media

    54 bis, rue Victor-Hugo. - Construction de 255 appartements, projet : plan des cellules 3 et 4 pièces.

    Date

    25 juin 1955

    Cote

    4FI/2897/2, 43W/109

    • Contexte : Cartes et plans
    • 54 bis, rue Victor-Hugo. - Construction de 255 appartements,...
  5. Résultat n°5

    99 avenue Jean-Lolive et 50 rue Victor-Hugo. - Résidence Victor-Hugo, construction de 350 logements : dossier d'avant-projet.

    Date

    1955

    Cote

    43W/91/3

    • Contexte : 43W
    • 99 avenue Jean-Lolive et 50 rue Victor-Hugo. - Résidence...
  6. Résultat n°6
    50, rue Victor-Hugo. - Construction de 255 appartements, projet : plans des cellules 2 et 3 pièces.

    1 media

    50, rue Victor-Hugo. - Construction de 255 appartements, projet : plans des cellules 2 et 3 pièces.

    Date

    25 juin 1955

    Cote

    4FI/2897/14, 43W/109

    • Contexte : Cartes et plans
    • 50, rue Victor-Hugo. - Construction de 255 appartements,...
  7. Résultat n°7
  8. Résultat n°8
    11 et 11 bis, rue Delizy. - Construction de 255 appartements, projet : plans de l'étage courant, du sous-sol, de la terrasse et du rez-de-chaussée.

    1 media

    11 et 11 bis, rue Delizy. - Construction de 255 appartements, projet : plans de l'étage courant, du sous-sol, de la terrasse et du rez-de-chaussée.

    Date

    25 juin 1955

    Cote

    4FI/2897/6, 43W/109

    • Contexte : Cartes et plans
    • 11 et 11 bis, rue Delizy. - Construction de 255 appartements,...
  9. Résultat n°9
    52 bis, rue Victor-Hugo. - Construction de 255 appartements, projet : plan des cellules 3 et 4 pièces.

    1 media

    52 bis, rue Victor-Hugo. - Construction de 255 appartements, projet : plan des cellules 3 et 4 pièces.

    Date

    25 juin 1955

    Cote

    4FI/2897/5, 43W/109

    • Contexte : Cartes et plans
    • 52 bis, rue Victor-Hugo. - Construction de 255 appartements,...
  10. Résultat n°10
    50, rue Victor-Hugo et 18, passage Privé. - Construction de 255 appartements, projet : plans des cellules 3 et 5 pièces.

    1 media

    50, rue Victor-Hugo et 18, passage Privé. - Construction de 255 appartements, projet : plans des cellules 3 et 5 pièces.

    Date

    25 juin 1955

    Cote

    4FI/2897/8, 43W/109

    • Contexte : Cartes et plans
    • 50, rue Victor-Hugo et 18, passage Privé. - Construction...
  11. Résultat n°11
    52 ter, 54, 54 bis et 54 ter, rue Victor-Hugo. - Construction de 255 appartements, projet : plans de l'étage courant et du rez-de-chaussée.

    1 media

    52 ter, 54, 54 bis et 54 ter, rue Victor-Hugo. - Construction de 255 appartements, projet : plans de l'étage courant et du rez-de-chaussée.

    Date

    25 juin 1955

    Cote

    4FI/2897/10, 43W/109

    • Contexte : Cartes et plans
    • 52 ter, 54, 54 bis et 54 ter, rue Victor-Hugo. - Construction...
  12. Résultat n°12
    11 bis, rue Delizy. - Construction de 255 appartements, projet : plans des cellules 2 et 3 pièces.

    1 media

    11 bis, rue Delizy. - Construction de 255 appartements, projet : plans des cellules 2 et 3 pièces.

    Date

    25 juin 1955

    Cote

    4FI/2897/11, 43W/109

    • Contexte : Cartes et plans
    • 11 bis, rue Delizy. - Construction de 255 appartements,...
  13. Résultat n°13

    99 avenue Jean-Lolive et 50 rue Victor-Hugo. - Résidence Victor-Hugo, construction d'un immeuble de 27 logements : permis de construire PC 55B3953.

    Date

    1955-1957

    Cote

    43W/108/1

    • Contexte : 43W
    • 99 avenue Jean-Lolive et 50 rue Victor-Hugo. - Résidence...
  14. Résultat n°14
    Rue de Paris, rue Victor-Hugo et rue Delizy. - Construction de 27 appartements, projet : plan d'ensemble.

    1 media

    Rue de Paris, rue Victor-Hugo et rue Delizy. - Construction de 27 appartements, projet : plan d'ensemble.

    Date

    25 juin 1955

    Cote

    4FI/2893/2, 43W/108

    • Contexte : Cartes et plans
    • Rue de Paris, rue Victor-Hugo et rue Delizy. - Construction...
  15. Résultat n°15
  16. Résultat n°16
  17. Résultat n°17

    99 avenue Jean-Lolive et 50 rue Victor-Hugo. - Résidence Victor-Hugo, construction d'un immeuble de 255 logements : permis de construire PC 55B3954.

    Date

    1955-1958

    Cote

    43W/110/1

    • Contexte : 43W
    • 99 avenue Jean-Lolive et 50 rue Victor-Hugo. - Résidence...
  18. Résultat n°18
    2, passage Privé. - Construction de 255 appartements, projet : plans des cellules 5 pièces.

    1 media

    2, passage Privé. - Construction de 255 appartements, projet : plans des cellules 5 pièces.

    Date

    25 juin 1955

    Cote

    4FI/2897/12, 43W/109

    • Contexte : Cartes et plans
    • 2, passage Privé. - Construction de 255 appartements,...
  19. Résultat n°19
    1, passage Privé. - Construction de 255 appartements, projet : plans des cellules 2 et 3 pièces.

    1 media

    1, passage Privé. - Construction de 255 appartements, projet : plans des cellules 2 et 3 pièces.

    Date

    25 juin 1955

    Cote

    4FI/2897/7, 43W/109

    • Contexte : Cartes et plans
    • 1, passage Privé. - Construction de 255 appartements,...
  20. Résultat n°20
    52 ter, rue Victor-Hugo. - Construction de 255 appartements, projet : plan des cellules 2 et 4 pièces.

    1 media

    52 ter, rue Victor-Hugo. - Construction de 255 appartements, projet : plan des cellules 2 et 4 pièces.

    Date

    25 juin 1955

    Cote

    4FI/2893/1, 43W/108

    • Contexte : Cartes et plans
    • 52 ter, rue Victor-Hugo. - Construction de 255 appartements,...