Résultats de la recherche

  1. Résultat n°1
    Les Courtillières. - 432 logements, projet de construction par l'Office public d'habitations à loyer modéré de la ville de Pantin : plan des étages des tours en tripode.

    1 media

    Les Courtillières. - 432 logements, projet de construction par l'Office public d'habitations à loyer modéré de la ville de Pantin : plan des étages des tours en tripode.

    Date

    17 octobre 1956

    Cote

    4FI/2291/6, 43W/27

    • Contexte : Cartes et plans
    • Les Courtillières. - 432 logements, projet de construction...
  2. Résultat n°2
    Les Courtillières. - 800 logements économiques et familiaux, projet de construction par la Société immobilière d'économie mixte du département de la Seine : plan du rez-de-chaussée du bâtiment E.

    1 media

  3. Résultat n°3
    Les Courtillières. - 400 logements HLM de type B, projet de construction par l'Office municipal d'habitations à loyer modéré de la ville de Pantin : plans du sous-sol et des étages du bâtiment D (4-5 pièces).

    1 media

  4. Résultat n°4
    Les Courtillières. - 432 logements, projet de construction par l'Office public d'habitations à loyer modéré de la ville de Pantin : plan du rez-de-chaussée et des caves du bâtiment 2.

    1 media

    Les Courtillières. - 432 logements, projet de construction par l'Office public d'habitations à loyer modéré de la ville de Pantin : plan du rez-de-chaussée et des caves du bâtiment 2.

    Date

    11 mars 1957

    Cote

    4FI/2291/10, 43W/27

    • Contexte : Cartes et plans
    • Les Courtillières. - 432 logements, projet de construction...
  5. Résultat n°5
    Les Courtillières. - 800 logements économiques et familiaux, projet de construction par la Société immobilière d'économie mixte du département de la Seine : plan du rez-de-chaussée du bâtiment D.

    1 media

  6. Résultat n°6
    Les Courtillières. - 400 logements HLM de type B, projet de construction par l'Office municipal d'habitations à loyer modéré de la ville de Pantin : plans des étages et de la toiture de la tour Étoile.

    1 media

  7. Résultat n°7
    Les Courtillières. - 800 logements économiques et familiaux, projet de construction par la Société immobilière d'économie mixte du département de la Seine : plan du sous-sol de la courbe C du Serpentin (cellules C42-C50).

    1 media

  8. Résultat n°8
    Les Courtillières. - 800 logements économiques et familiaux, projet de construction par la Société immobilière d'économie mixte du département de la Seine : plan du sous-sol de la courbe B du Serpentin (cellules B13-B22).

    1 media

  9. Résultat n°9
    Les Courtillières. - 400 logements HLM de type B, projet de construction par l'Office municipal d'habitations à loyer modéré de la ville de Pantin : plans du sous-sol et des étages du bâtiment D (4-5 pièces).

    1 media

  10. Résultat n°10
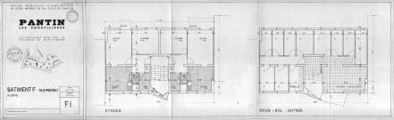
    Les Courtillières. - 800 logements économiques et familiaux, projet de construction par la Société immobilière d'économie mixte du département de la Seine : plan du rez-de-chaussée du bâtiment F.

    1 media

  11. Résultat n°11
    Les Courtillières. - 800 logements économiques et familiaux, projet de construction par la Société immobilière d'économie mixte du département de la Seine : plans de cellule 4-5 pièces dans les courbes du Serpentin.

    1 media

  12. Résultat n°12
    Les Courtillières. - 400 logements HLM de type B, projet de construction par l'Office municipal d'habitations à loyer modéré de la ville de Pantin : élévations des façades de la tour Étoile.

    1 media

  13. Résultat n°13
    Les Courtillières. - 432 logements, projet de construction par l'Office public d'habitations à loyer modéré de la ville de Pantin : élévation des façades développées des tours en tripode.

    1 media

    Les Courtillières. - 432 logements, projet de construction par l'Office public d'habitations à loyer modéré de la ville de Pantin : élévation des façades développées des tours en tripode.

    Date

    08 mars 1957

    Cote

    4FI/2291/7, 43W/27

    • Contexte : Cartes et plans
    • Les Courtillières. - 432 logements, projet de construction...
  14. Résultat n°14
    Les Courtillières. - 400 logements HLM de type B, projet de construction par l'Office municipal d'habitations à loyer modéré de la ville de Pantin : plans du sous-sol et des étages du bâtiment F (2 pièces).

    1 media

  15. Résultat n°15
    Les Courtillières : plan masse de 1955 modifié.

    1 media

    Les Courtillières : plan masse de 1955 modifié.

    Date

    juin 1956

    Cote

    4FI/2292/4, 43W/27

    • Contexte : Cartes et plans
    • Les Courtillières : plan masse de 1955 modifié.
  16. Résultat n°16
    Les Courtillières. - 800 logements économiques et familiaux, projet de construction par la Société immobilière d'économie mixte du département de la Seine : plan des étages des bâtiments D-E-F-G.

    1 media

    Les Courtillières. - 800 logements économiques et familiaux, projet de construction par la Société immobilière d'économie mixte du département de la Seine : plan des étages des bâtiments D-E-F-G.

    Date

    18 juillet 1956

    Cote

    4FI/2288/1, 43W/25

    • Contexte : Cartes et plans
    • Les Courtillières. - 800 logements économiques et familiaux,...
  17. Résultat n°17
    Les Courtillières. - 800 logements économiques et familiaux, projet de construction par la Société immobilière d'économie mixte du département de la Seine : plan du sous-sol de la courbe A du Serpentin (cellules A1-A12).

    1 media

  18. Résultat n°18
  19. Résultat n°19
    Les Courtillières. - 432 logements, projet de construction par l'Office public d'habitations à loyer modéré de la ville de Pantin : plan du rez-de-chaussée des tours en tripode.

    1 media

    Les Courtillières. - 432 logements, projet de construction par l'Office public d'habitations à loyer modéré de la ville de Pantin : plan du rez-de-chaussée des tours en tripode.

    Date

    22 octobre 1956

    Cote

    4FI/2291/5, 43W/27

    • Contexte : Cartes et plans
    • Les Courtillières. - 432 logements, projet de construction...
  20. Résultat n°20

    Avenue des Courtillières [actuelle avenue Aimé-Césaire] : permis de construire.

    Date

    1964-1965

    Cote

    43W/28/3

    • Contexte : 43W
    • Avenue des Courtillières [actuelle avenue Aimé-Césaire]...
  21. Résultat n°21

    Rue Boileau et rue du Pont-de-Pierre. - Ensemble dit du Pont-de-Pierre, construction de 432 logements sociaux : permis de construire PC 56B4116.

    Date

    1955-1958

    Cote

    43W/24/5

    • Contexte : 43W
    • Rue Boileau et rue du Pont-de-Pierre. - Ensemble dit...
  22. Résultat n°22

    Avenue des Courtillières [actuelle avenue Aimé-Césaire] : permis de construire.

    Date

    1958

    Cote

    43W/26/1

    • Contexte : 43W
    • Avenue des Courtillières [actuelle avenue Aimé-Césaire]...
  23. Résultat n°23
    Les Courtillières. - 800 logements économiques et familiaux, projet de construction par la Société immobilière d'économie mixte du département de la Seine : plan du sous-sol de la courbe C du Serpentin (cellules C51-C58).

    1 media

  24. Résultat n°24
    Les Courtillières. - Crèche, halte-garderie et centre de protection maternelle et infantile (PMI), projet de construction : plan.

    1 media

    Les Courtillières. - Crèche, halte-garderie et centre de protection maternelle et infantile (PMI), projet de construction : plan.

    Date

    08 septembre 1958

    Cote

    4FI/2292/2, 43W/27

    • Contexte : Cartes et plans
    • Les Courtillières. - Crèche, halte-garderie et centre...
  25. Résultat n°25
    Les Courtillières. - 432 logements, projet de construction par l'Office public d'habitations à loyer modéré de la ville de Pantin : élévations des façades des bâtiments bas.

    1 media

    Les Courtillières. - 432 logements, projet de construction par l'Office public d'habitations à loyer modéré de la ville de Pantin : élévations des façades des bâtiments bas.

    Date

    30 novembre 1956

    Cote

    4FI/2291/12, 43W/27

    • Contexte : Cartes et plans
    • Les Courtillières. - 432 logements, projet de construction...
  26. Résultat n°26
    Les Courtillières. - Crèche, halte-garderie et centre de protection maternelle et infantile (PMI), projet de construction : élévations des façades et coupes (sud).

    1 media

    Les Courtillières. - Crèche, halte-garderie et centre de protection maternelle et infantile (PMI), projet de construction : élévations des façades et coupes (sud).

    Date

    09 décembre 1958

    Cote

    4FI/2292/3, 43W/27

    • Contexte : Cartes et plans
    • Les Courtillières. - Crèche, halte-garderie et centre...
  27. Résultat n°27

    Avenue des Courtillières [actuelle avenue Aimé-Césaire]. - Le Serpentin, construction d'un ensemble de 800 logements sociaux : permis de construire.

    Date

    1957

    Cote

    43W/24/4

    • Contexte : 43W
    • Avenue des Courtillières [actuelle avenue Aimé-Césaire]....
  28. Résultat n°28
    Les Courtillières. - 400 logements HLM de type B, projet de construction par l'Office municipal d'habitations à loyer modéré de la ville de Pantin : élévations des façades et coupes des bâtiments D et F.

    1 media

  29. Résultat n°29
    Les Courtillières. - 400 logements HLM de type B, projet de construction par l'Office municipal d'habitations à loyer modéré de la ville de Pantin : plans du sous-sol et des étages du bâtiment F (2 pièces).

    1 media

  30. Résultat n°30
    Les Courtillières. - Cité d'urgence du Pont-de-Pierre, projet de construction par l'Office public d'habitations à loyer modéré (HLM) de la Seine : plan masse 13a de la parcelle A.

    1 media

    Les Courtillières. - Cité d'urgence du Pont-de-Pierre, projet de construction par l'Office public d'habitations à loyer modéré (HLM) de la Seine : plan masse 13a de la parcelle A.

    Date

    02 mai 1963

    Cote

    4FI/418, 43W/23

    • Contexte : Cartes et plans
    • Les Courtillières. - Cité d'urgence du Pont-de-Pierre,...
  31. Résultat n°31
    Les Courtillières. - 800 logements économiques et familiaux, projet de construction par la Société immobilière d'économie mixte du département de la Seine : plan des étages des bâtiments D-E-F-G.

    1 media

    Les Courtillières. - 800 logements économiques et familiaux, projet de construction par la Société immobilière d'économie mixte du département de la Seine : plan des étages des bâtiments D-E-F-G.

    Date

    18 juillet 1956

    Cote

    4FI/2288/7, 43W/25

    • Contexte : Cartes et plans
    • Les Courtillières. - 800 logements économiques et familiaux,...
  32. Résultat n°32
    Les Courtillières. - 400 logements HLM de type B, projet de construction par l'Office municipal d'habitations à loyer modéré de la ville de Pantin : élévations des façades de la tour Étoile.

    1 media

  33. Résultat n°33
    Les Courtillières. - 800 logements économiques et familiaux, projet de construction par la Société immobilière d'économie mixte du département de la Seine : plan du sous-sol de la courbe C du Serpentin (cellules C32-C41).

    1 media

  34. Résultat n°34
    Les Courtillières. - 432 logements, projet de construction par l'Office public d'habitations à loyer modéré de la ville de Pantin : plan des caves des tours en tripode.

    1 media

    Les Courtillières. - 432 logements, projet de construction par l'Office public d'habitations à loyer modéré de la ville de Pantin : plan des caves des tours en tripode.

    Date

    25 octobre 1956

    Cote

    4FI/2291/4, 43W/27

    • Contexte : Cartes et plans
    • Les Courtillières. - 432 logements, projet de construction...
  35. Résultat n°35
    Les Courtillières : plan masse de 1955 modifié.

    1 media

    Les Courtillières : plan masse de 1955 modifié.

    Date

    06 décembre 1961

    Cote

    4FI/2286/1, 43W/24

    • Contexte : Cartes et plans
    • Les Courtillières : plan masse de 1955 modifié.
  36. Résultat n°36
    Les Courtillières. - 800 logements économiques et familiaux, projet de construction par la Société immobilière d'économie mixte du département de la Seine : plan du passage entre les cellules A8 et A9 du Serpentin.

    1 media

  37. Résultat n°37
    Les Courtillières. - 400 logements HLM de type B, projet de construction par l'Office municipal d'habitations à loyer modéré de la ville de Pantin : plan masse.

    1 media

    Les Courtillières. - 400 logements HLM de type B, projet de construction par l'Office municipal d'habitations à loyer modéré de la ville de Pantin : plan masse.

    Date

    20 juillet 1956

    Cote

    4FI/2287/1, 43W/24

    • Contexte : Cartes et plans
    • Les Courtillières. - 400 logements HLM de type B, projet...
  38. Résultat n°38

    Avenue des Courtillières [actuelle avenue Aimé-Césaire] : permis de construire.

    Date

    1956

    Cote

    43W/27/1

    • Contexte : 43W
    • Avenue des Courtillières [actuelle avenue Aimé-Césaire]...
  39. Résultat n°39

    Avenue des Courtillières [actuelle avenue Aimé-Césaire] : permis de construire.

    Date

    1959

    Cote

    43W/27/2

    • Contexte : 43W
    • Avenue des Courtillières [actuelle avenue Aimé-Césaire]...
  40. Résultat n°40
    Les Courtillières. - 800 logements économiques et familiaux, projet de construction par la Société immobilière d'économie mixte du département de la Seine : élévations des façades des passages et pignons du Serpentin.

    1 media

  41. Résultat n°41
    Les Courtillières. - 800 logements économiques et familiaux, projet de construction par la Société immobilière d'économie mixte du département de la Seine : plans du sous-sol et du rez-de-chaussée de la cellule B22 avec loge du gardien dans la courbe B du Serpentin, élévations des façades côtés entrée, pignon et jardin.

    1 media

  42. Résultat n°42
    Les Courtillières. - 432 logements, projet de construction par l'Office public d'habitations à loyer modéré de la ville de Pantin : plan du rez-de-chaussée et des caves du bâtiment 1.

    1 media

    Les Courtillières. - 432 logements, projet de construction par l'Office public d'habitations à loyer modéré de la ville de Pantin : plan du rez-de-chaussée et des caves du bâtiment 1.

    Date

    28 novembre 1956

    Cote

    4FI/2291/9, 43W/27

    • Contexte : Cartes et plans
    • Les Courtillières. - 432 logements, projet de construction...
  43. Résultat n°43
    Les Courtillières. - 800 logements économiques et familiaux, projet de construction par la Société immobilière d'économie mixte du département de la Seine : plans de cellule 2-3 pièces dans les courbes du Serpentin.

    1 media

  44. Résultat n°44
    Les Courtillières. - 800 logements économiques et familiaux, projet de construction par la Société immobilière d'économie mixte du département de la Seine : plans du sous-sol et du rez-de-chaussée de la cellule C44 avec loge du gardien dans la courbe C du Serpentin, élévations des façades côtés entrée, passage et jardin.

    1 media

  45. Résultat n°45
    Les Courtillières. - Crèche, halte-garderie et centre de protection maternelle et infantile (PMI), projet de construction : élévations des façades et coupes (nord et est).

    1 media

    Les Courtillières. - Crèche, halte-garderie et centre de protection maternelle et infantile (PMI), projet de construction : élévations des façades et coupes (nord et est).

    Date

    09 décembre 1958

    Cote

    4FI/2292/1, 43W/27

    • Contexte : Cartes et plans
    • Les Courtillières. - Crèche, halte-garderie et centre...
  46. Résultat n°46
    Les Courtillières. - 800 logements économiques et familiaux, projet de construction par la Société immobilière d'économie mixte du département de la Seine : plan du rez-de-chaussée du bâtiment E.

    1 media

  47. Résultat n°47
    Les Courtillières. - 800 logements économiques et familiaux, projet de construction par la Société immobilière d'économie mixte du département de la Seine : élévations des façades des courbes du Serpentin.

    1 media

  48. Résultat n°48
    Les Courtillières. - 800 logements économiques et familiaux, projet de construction par la Société immobilière d'économie mixte du département de la Seine : plans du sous-sol et du rez-de-chaussée de la cellule B22 avec loge du gardien dans la courbe B du Serpentin, élévations des façades côtés entrée, pignon et jardin.

    1 media

  49. Résultat n°49
    Les Courtillières. - 800 logements économiques et familiaux, projet de construction par la Société immobilière d'économie mixte du département de la Seine : plan du rez-de-chaussée du bâtiment D.

    1 media

  50. Résultat n°50
    Les Courtillières. - 432 logements, projet de construction par l'Office public d'habitations à loyer modéré de la ville de Pantin : groupements des logements des bâtiments bas 1 et 2.

    1 media

    Les Courtillières. - 432 logements, projet de construction par l'Office public d'habitations à loyer modéré de la ville de Pantin : groupements des logements des bâtiments bas 1 et 2.

    Date

    27 novembre 1956

    Cote

    4FI/2291/8, 43W/27

    • Contexte : Cartes et plans
    • Les Courtillières. - 432 logements, projet de construction...
  51. Résultat n°51
    Les Courtillières. - 800 logements économiques et familiaux, projet de construction par la Société immobilière d'économie mixte du département de la Seine : plans de cellule 1-3-4 pièces dans les courbes du Serpentin.

    1 media

  52. Résultat n°52
    Les Courtillières. - 800 logements économiques et familiaux, projet de construction par la Société immobilière d'économie mixte du département de la Seine : plan du sous-sol de la courbe C du Serpentin (cellules C23-C31).

    1 media

  53. Résultat n°53
    Les Courtillières. - 800 logements économiques et familiaux, projet de construction par la Société immobilière d'économie mixte du département de la Seine : élévation des façades du bâtiment D.

    1 media

  54. Résultat n°54
    Les Courtillières. - 432 logements, projet de construction par l'Office public d'habitations à loyer modéré de la ville de Pantin : plan d'étage courant des bâtiments bas.

    1 media

    Les Courtillières. - 432 logements, projet de construction par l'Office public d'habitations à loyer modéré de la ville de Pantin : plan d'étage courant des bâtiments bas.

    Date

    30 novembre 1956

    Cote

    4FI/2291/11, 43W/27

    • Contexte : Cartes et plans
    • Les Courtillières. - 432 logements, projet de construction...
  55. Résultat n°55

    Parc des Courtillières [avenue Aimé-Césaire]. - Centre de protection maternelle et infantile : permis de construire.

    Date

    1959

    Cote

    43W/27/3

    • Contexte : 43W
    • Parc des Courtillières [avenue Aimé-Césaire]. - Centre...
  56. Résultat n°56

    Parc des Courtillières [avenue Aimé-Césaire]. - Crèche : permis de construire.

    Date

    1959

    Cote

    43W/27/4

    • Contexte : 43W
    • Parc des Courtillières [avenue Aimé-Césaire]. - Crèche...
  57. Résultat n°57

    Avenue des Courtillières [actuelle avenue Aimé-Césaire] : permis de construire.

    Date

    1956

    Cote

    43W/28/1

    • Contexte : 43W
    • Avenue des Courtillières [actuelle avenue Aimé-Césaire]...
  58. Résultat n°58

    Avenue des Courtillières [actuelle avenue Aimé-Césaire] : permis de construire.

    Date

    1962

    Cote

    43W/28/2

    • Contexte : 43W
    • Avenue des Courtillières [actuelle avenue Aimé-Césaire]...
  59. Résultat n°59
    Les Courtillières. - 800 logements économiques et familiaux, projet de construction par la Société immobilière d'économie mixte du département de la Seine : plan masse.

    1 media

    Les Courtillières. - 800 logements économiques et familiaux, projet de construction par la Société immobilière d'économie mixte du département de la Seine : plan masse.

    Date

    13 juillet 1956

    Cote

    4FI/2288/4, 43W/25

    • Contexte : Cartes et plans
    • Les Courtillières. - 800 logements économiques et familiaux,...
  60. Résultat n°60

    Avenue des Courtillières [actuelle avenue Aimé-Césaire] : permis de construire.

    Date

    1957

    Cote

    43W/25

    • Contexte : 43W
    • Avenue des Courtillières [actuelle avenue Aimé-Césaire]...
  61. Résultat n°61

    Parc des Courtillières [avenue Aimé-Césaire]. - Halte garderie : permis de construire.

    Date

    1959

    Cote

    43W/27/5

    • Contexte : 43W
    • Parc des Courtillières [avenue Aimé-Césaire]. - Halte...